物件の特徴
主な設備
電気
公営水道
公共下水
都市ガス
給湯
コンロ三口
カウンターキッチン
システムキッチン
ユニットバス
トイレ2箇所
室内洗濯機置場
洗髪洗面化粧台
LDK15畳以上
クローゼット
全居室収納
バルコニー
南面バルコニー
主な特徴
駅まで平坦
南側道路面す
スーパーが近い
閑静な住宅街
周辺交通量少なめ
市街地が近い
陽当り良好
3階建以上
平坦地
即入居可
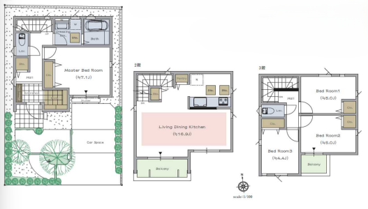
つくばエクスプレス線「六町」駅徒歩10~11分、全15邸の大規模分譲地に誕生した新築戸建。開発面積約2,600㎡超の整った街並みが魅力です。本物件は南側約5.0mの開発道路に面しており、陽当りや開放感にも恵まれています。間取りは4LDK+SICを採用し、玄関まわりの収納も充実。リビングを中心とした使いやすい動線設計で、家族が自然と集まる空間を実現しています。3階建のため居室数も確保されており、在宅ワークや子ども部屋など多様な使い方が可能。ファミリーにおすすめの住まいです。
物件概要
| 価格 | 6,980万円 | 間取り | 4LDK |
|---|---|---|---|
| 物件種別 | 新築一戸建て | ||
| 所在地 | 東京都足立区南花畑1丁目 | ||
| アクセス | つくばエクスプレス『六町』 徒歩11分 (約880m) 東京メトロ千代田線『北綾瀬』 徒歩29分 (約2300m) |
||
| 建物面積 | 公99.46㎡ | 駐車場 | あり 普通:1台 |
| 築年月 | 2025年(令和7年)12月築 | 建築確認 | |
| 建物構造 | 木造 3階建 | 工法 | |
| 主要採光 | 南向 | バルコニー | 南向5.00㎡ |
| 保証・評価 | |||
| 分譲情報 | |||
| 土地面積 | 公85.81㎡(25.95坪) | 接道 | 南側(私道)幅 約5.0m |
| 私道 | セットバック | ||
| 地目 | 宅地 | 地勢 | 平坦 |
| 権利 | 所有権 |
||
| 都市計画 | 市街化区域 |
用途地域 | 準工業 |
| 建ぺい/容積率 | 60% / 200% | 土地国土法 | |
| 許可番号 | 建築基準法 | ||
| 法令制限 | |||
| 小学区 | 花畑小学校 徒歩7分 (約550m) | 中学区 | 花保中学校 徒歩14分 (約1100m) |
| 現況 | 空 | 引渡 | 即 |
| その他費用 | |||
| 周辺環境 | 児童館・悠々館 徒歩4分 (約300m) 足立区立花畑小学校 徒歩5分 (約330m) 足立区立十三中学校 徒歩9分 (約670m) ぎょうざ工房 千稀 徒歩5分 (約380m) ヤマザキショップ 徒歩6分 (約480m) ローソン神明南1丁目店 徒歩12分 (約900m) YOPUTERRACE 徒歩7分 (約500m) 鉄板焼き ゆきん粉 徒歩7分 (約510m) 喫茶店 徒歩6分 (約480m) 南花畑歯科医院 徒歩7分 (約540m) |
||
| 備考 | つくばエクスプレス線「六町」駅徒歩10~11分、全15邸の大規模分譲地内に位置する新築戸建です。開発面積約2,600㎡超の整った街並みが魅力で、統一感のある住環境が広がります。南側約5.0mの開発道路に面し、陽当たりや開放感も良好。間取りは4LDK+SICで収納スペースも確保されており、ファミリーに適した設計です。建物面積約99㎡の3階建で、各居室をしっかり確保。準工業地域、建ぺい率60%・容積率200%。2025年12月完成予定。売主物件のため安心してご検討いただけます。 | ||
| 物件番号 | 4662184 | 取引態様 | 媒介 |












担当エージェント:穴井一樹
全15棟の分譲地のため、周辺は同時期に入居される方が多く、落ち着いた住環境とコミュニティ形成のしやすさが魅力です。特に2号棟は南側道路に面しており、日当たりの良さがポイント。明るいリビング空間で快適にお過ごしいただけます。SIC付きで玄関まわりもすっきり片付き、生活感を抑えた住空間が実現可能です。3階建のため部屋数も確保されており、テレワークや趣味部屋などライフスタイルに合わせた使い方ができます。ぜひ現地で日当たりや街並みをご体感ください。